Máy lạnh Chiller máy sản xuất nước lạnh dùng trong điều hòa không khí trung tâm, dùng nước để làm chất tải lạnh. Đây là loại máy phát sinh ra những nguồn lạnh để làm lạnh lại các đồ vật, thực phẩm. Ở các loại máy lạnh trong điều hòa luôn thấy một nguồn lạnh và một nguồn nóng hơn trong môi trường xung quanh. Tùy theo mục đích người ta sử dụng mà gọi cho thích hợp chứ thực ra máy lạnh cũng là máy bơm nhiệt. Máy lạnh sử dụng nguồn lạnh là chính, khi máy bơm nhiệt nguồn nóng là chủ yếu. Có nhiểu trường hợp để chúng ta sử dụng và thiết kế cả hai nguồn lạnh và nóng, và nó cũng tiết kiệm được nhiều năng lượng.
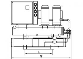
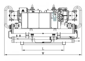
Nước làm lạnh qua bình bốc hơi thường ở 12 độ và ra ở 7 độ. Máy chiller thực ra gồm 4 thiết bị chính, chu trình nhiệt căn bản là máy nén, van tiết lưu, thiết bị ngưng tụ và thiết bị bay hơi. Còn thêm một số các thiết bị khác. Chiller được sản xuất nguyên cụm và không tách rời, được đạt tiêu chuẩn theo AtRI. Việc phân loại chiller có nhiều cách: Như theo máy nén (Piston, trục, vít,ốc,ly tâm..), theo thiết bị ngưng tụ như giải nhiệt nước (water-cooled), hay giải nhiệt gió(Air-cooled), loại thiết bị hồi nhiệt (heat recovery), loại lưu lượng qua bình bốc hơi không thay đổi hay thay đổi lưu lượng nước,… Ngoài ra còn có loại Chiller hấp thụ.

